防爆控制小屋在天然气管线阀室中的应用

2024/6/3 3:57:19 人评论 次浏览 分类:技术方案  文章地址://www.fkswng.com/tech/5623.html

随着中国经济快速发展,各地为了获取更多的能源保障不断推进天然气长输管道项目的建设。为保障天然气长输管线投产运营安全,根据管线途径区域的不同等级和实际条件,管线每隔8km~36km需设置一座线路截断阀室(以下简称“阀室”)。传统阀室建设方案需建设一座实体房屋,用于安装供配电、仪表控制、工艺管道阀门设备。防爆控制小屋是指将除工艺阀组区外的低压配电设备、UPS不间断电源、自动控制系统、安防监控、网络通信、气体监测、通风制冷、照明等多种设备高度集成在一个长×宽×高为2.5×2.5×2.4(m)的撬装防爆小屋内,不仅能够实现传统方案完成的公司SCADA生产调度系统对阀室现场运行工况的监控及现场阀门的远程控制,还可以实现传统方案无法完成的远程控制空调、照明、门禁及控制联锁等功能。该防爆控制小屋的应用将原来安装在室内的工艺管道阀门设备改为室外安装,不仅提高了阀室工艺设备安全性和后期维护管理便捷性,还缩短了阀室建设工期,加快整个长输管道项目早日投产发挥经济效益的进度。

传统实体房屋阀室工艺阀组区及自动控制室

图1 传统实体房屋阀室工艺阀组区及自动控制室


1、防爆控制小屋

1.1 设计思路
传统一座带实体房屋的阀室建设总工期大约需要11个月的时间,其中在实体房屋建设前手续办理工作上大约需要8个月的时间;在后期施工过程中土建专业需配合工艺、电气、仪表等专业施工并提供作业面,在实际施工过程中各专业施工队伍间的协调给项目管理带来了不少的困难;另外,由于部分阀室建设项目用地手续办理困难使实体房屋无法建设,给传统阀室建设工作带来了更大的不确定性。

基于上述因素,加之天然气长输管道阀室工艺主要为一个主线路截断阀和配套旁通管道和放散管道(和放散装置)组成的工艺阀组区(见图1),工艺相对比较简单,因此提出了不建设实体房屋,将工艺阀门管道、配电设备和自动控制设备等均露天建设的设想。由于天然气长输管道阀室建设项目多位于人迹较少的位置,无线网络通讯不稳定等因素,所以放弃了无线远程控制的方案,坚持以有线网络通讯为主、无线网络为辅的网络通讯方案,并以RTU控制系统为中心配置UPS不间断电源、低压配电箱,以及安防周界、视频监控等设备。又因设备配置较多,现场分散布置安装调试工程量较大,且设备运行对环境有一定的要求,建设方向调整到将各种强弱电设备集成在撬装式小屋内,并开始进行小屋内设备摆放布局,尺寸确定,配套功能设备新增等工作。


1.2 设计原则

由于天然气是易燃易爆气体,因而阀室属于典型的易燃易爆生产场所,防爆控制小屋的设计应遵循如下原则:

1)规范性。小屋整体防爆认证要满足爆炸2区的使用要求,确保极端情况下小屋能够放置在爆炸区域内使用;小屋内部设备的安装和线路布置应横平竖直,满足防爆要求并保证整齐美观,确保符合国家标准、技术规范及行业标准。


2)安全性。防爆控制小屋需要全面的安全保护措施,不仅应具有可燃气体可燃检测、氧气含量实时监测和火灾烟感探测报警设备及联锁防爆风机和声光报警器工作的功能,还应满足防雷击、过流和漏电保护功能,保证防爆控制小屋的整体安全性能。


3)布局合理性。由于小屋内部集成了多种设备,在设计时应充分考虑在满足功能的前提下,充分降低集成复杂程度,减小各功能区设备的尺寸,并通过合理布局,兼顾后期使用操作和维修方便,尽可能减小小屋的占地面积。


4)可维护性。防爆控制小屋内部设备均应易操作、易维护,确保出现故障时能及时、快速地进行检维修。


1.3 主要构成

防爆控制小屋长×宽×高尺寸为2.5×2.5×2.4(m),总占地面积不足7m2。小屋外墙板采用304不锈钢板,内墙板采用1.5mm厚的碳钢喷塑,内外墙及屋顶和房顶之间充填75mm厚的聚氨酯绝热阻燃材料。整座小屋作为非第一类防雷建筑物,不锈钢金属屋面符合满足设计规范要求作为接闪器使用,小屋无需再单独设置防雷接闪装置。小屋采用由工字钢焊接而成的框架式结构,侧墙每0.5m加装负重材料一根,进一步增强负重能力。

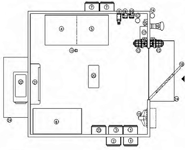
为了尽可能减少小屋的占地面积,小屋内部设备布置在多次讨论后,最终按如下方案布置:

防爆控制小屋内部俯视图

防爆控制小屋内部正面平视图

图2 防爆控制小屋内部俯视图及正面平视图


1)低压配电系统:防爆低压电源进线箱(1)、防爆电源出线箱(2)、防爆公共配电箱(3)、防爆维修插座(8)。


2)RTU控制系统:防爆RTU控制柜(4)、防爆UPS电源柜(6)、防爆仪表接线箱(7)。


3)安防监控及语音对讲系统:防爆网络视频对讲柜(5)、室内防爆摄像机(13)、室外防爆摄像机(14)、防爆拾音器(15)、防爆告警器(16)、防爆电子门禁(17)、防爆电子门禁读卡器(25)。


4)气体火灾报警系统:防爆氧气探测器(9)、防爆甲烷探测器(10)、防爆烟感探测器(11)、防爆声光报警器(12)。


5)正压通风系统:正压防爆风机(19)、防爆风机防爆开关(27)。


6)照明装置:防爆应急荧光灯(20)、室内荧光灯防爆开关(26)。


7)防爆空调:防爆空调壁挂内机(21)、防爆空调外机(22)、防爆空调远程控制箱(23)。


8)其他:防爆控制小屋带机械逃生锁门(18)、逃生锁机械钥匙盒(28)和遮雨棚(24)。


1.4 主要功能及特点

1)低压配电功能。接入外部380VAC低压供电电源后,可将电源分配至天然气阀室现场及小屋内各用电设备,例如:室外照明灯、室外电动执行机构、室内UPS电源、室内防爆空调、室内防爆检修插座等。

2)自动控制功能。现场RTU自动控制系统是天然气SCADA生产调度系统中的重要组成部分,同时也是燃气生产输配设备三级控制中的现场远程控制层面的系统。它接收现场压力、温度等仪表信号和阀门设备状态反馈信号,在现场的触摸屏上显示并通过网络远传至SCADA生产调度系统中心平台展示,也可以接收SCADA生产调度系统中心平台阀门控制命令或自行远程控制现场燃气生产设备,实现远程控制功能。另外,除了常规的生产设备控制功能外,还可以远程开关室外照明设施、室内空调、防爆风机、防爆声光报警器等设备。


3)安防监控及语音对讲功能。防爆控制小屋内外部各设置一个带云台功能的防爆摄像机,操作人员可以通过摄像机实时观察室内外设备安全情况监视。另外通过功放机、防爆拾音器和防爆扬声器可以实现现场与SCADA生产调度系统语音对讲,尤其是当现场有人非法入侵后,及时将入侵报警信号上传SCADA生产调度系统,值班监控人员可以根据报警信息通过对现场喊话,语音警戒入侵者,达到震慑作用。


4)防爆控制小屋非法入侵报警功能。控制小屋进门处设有防爆电子门禁,信号远传至SCADA生产调度系统提示值班监控人员,以防他人未经允许进入控制小屋,增加了控制小屋的安全性能。门上安装了安全玻璃窗,操作人员进门前可透过玻璃观察屋内情况。小屋门也安装了机械“紧急逃生锁”,以便一旦锁上能从里面打开。


5)小屋内部环境安全联锁功能。根据相关规定及规范,分析小屋都配置了安全监测报警设备。小屋内部设置温湿度传感器,实时检测内部环境条件。并在RTU自动控制系统内,通过设置联锁控制逻辑,可以实现小屋内温度超高(≥35℃)报警,自动开启防爆空调进行制冷或制热,使小屋内部温度保持在20℃~28℃之间,保障小屋内设备正常工作;另外在小屋内设置防爆烟感火灾探测器、甲烷气体探测器、氧气浓度探测器,根据烟感火灾报警、甲烷气体浓度高报(≥25%LEL)、氧气浓度低报(≤19.5%)3个实时信号,任一条件满足即可自动开启防爆风机通风,并联动声光报警器进行报警提示,保障生产人员安全。


6)撬装式结构集成。整座防爆控制小屋的所有设备集成在撬装式钢结构上,设计紧凑,占地面积小。主要安装及测试工作在工厂内完成,现场安装工作量和测试量少,仅需进行少量电力电缆、仪表控制线缆的接线并进行设备测试即可实现功能。小屋整体重量约3吨,吊装安拆和迁移方便。

庐巢线槐林阀室带控制点的工艺流程图
图3 庐巢线槐林阀室带控制点的工艺流程图


7)防爆认证。防爆控制小屋具有整体Ex II CT4 Gc防爆认证,在阀室无法得到足够的批复面积时,能够放置在天然气工艺装置区爆炸2区域内正常工作。


8)复制化程度高。由于天然气长输管道沿线配套建设阀室工艺简单(如图3所示),管道压力检测仪表、可燃气体探测仪表、企业联动阀门及电动阀门数量变化幅度不大,防爆控制小屋制造方案一经确定即可根据项目需要进行复制建造,可以进行多项目推广应用。


2、防爆控制小屋应用实例

为推进天然气管网建设,提升合肥、六安、无为等市天然气供应保障能力,优化能源消费结构,某公司大力推进新桥机场—金安东桥天然气管道工程(以下简称“合六线”)、环巢湖天然气高压管线工程庐江—巢湖段(以下简称“庐巢线”)和合肥—巢湖段(以下简称“合巢线”)、合肥庐北至池州高压天然气管线工程(以下简称“庐池线”)、合肥天然气绕城高压管线工程(以下简称“绕城高压管线”)项目建设,项目沿线建设若干调压站、输气站及阀室。自2020年7月开始,陆续在绕城高压管线龙塘阀室、南淝河阀室、锦绣大道阀室,合六线高店阀室、高升阀室、官亭阀室,庐巢线冶父山阀室、盛桥阀室、槐林阀室,共计9座阀室项目上应用,并陆续在2021年完成投产,让六安金寨革命老区和无为市人民用上了优质的管道天然气,目前设备运行良好。下一步将持续推广该防爆控制小屋在合巢线5座阀室项目、庐巢线剩余3座阀室项目及庐池线6座阀室项目建设中的应用,进一步在省级天然气主干网工程项目发挥防爆控制小屋的效益。部分已建成投产阀室防爆控制小屋如图4所示。

部分已建成阀室图片
图4 部分已建成阀室图片


3、防爆控制小屋应用效益分析

3.1 建设工期方面
防爆控制小屋属于设备,无需传统阀室房屋建设的行政审批手续的办理。小屋的集成制造均在工厂内部,大幅减少了土建、工艺、电气、仪表专业施工交叉作业和进度制约问题带来的影响,现场小屋基础具备承重条件即可吊装至现场。该防爆控制小屋的应用,相较传统阀室建设至少节省9个月的工期。
|
3.2 工程造价方面

以合六线高流阀室为例的传统阀室房屋、低压配电及仪表控制系统设备费用造价共计约80万元;而以合六线高升阀室为例的防爆控制小屋和混凝土基础的造价共计约32万元,节省金额约48万元,工程造价成本降幅达60%,经济效益显著。

3.3 自动化程度方面

防爆控制小屋具备远程开关照明灯、远程开关空调及屋内超温自动开空调降温等功能,相较传统阀室的手动开照明、空调等方式,具有更高的自动化程度,值班监控人员可以通过SCADA生产调度系统远程操作相关设备,查看设备反馈信号、视频画面核对即可了解阀室设备是否处在正常工况,减少人员前往阀室现场巡检次数,提高了生产运营单位的运维效率,尤其是在阀室位置偏远、环境恶劣的项目,尤其显得重要。

3.4 应急处置方面

防爆控制小屋为撬装集成式,安装拆卸简单,吊装运输简便。庐巢线部分阀室位于泄洪区或低洼地带,如若后期遇到泄洪、持续强降雨等特殊情况,可提前将小屋外部的少量线缆拆除后吊装运走,待水位下降后再行恢复安装即可恢复生产运营。减少因设备被水浸泡损坏情况的发生,最大限度减少公司的损失,保障公司财产安全。

4、未来应用改进方向

由于个别防爆控制小屋四周空旷,镂空围墙无法提供阳光遮挡的环境条件,在后期小屋建造中可根据项目现场实际条件和需要在小屋的顶部加装可替代防雷接闪器的不锈钢遮阳棚,减少夏季长时间阳光暴晒热量传导进小屋内部,缓解小屋内部持续高温带来空调长时间满负荷工作的压力,减少电能的消耗,降低生产运营成本。

另外,由于部分阀室用地批复面积足够,控制小屋可放置在防爆区域以外,可新增不采用防爆产品集成的控制小屋方案,进一步降低控制小屋的建造成本,减少工程造价。


5、结束语

防爆控制小屋作为一个多种设备集成,可重复建造和利用的一体化设备,在某公司高压天然气管线工程建设上得到了较好的应用。防爆控制小屋虽然是当时工程建设需求的一个产物,但是凝聚了参与制造人员的知识和汗水,尤其是在第一座防爆控制小屋建造后进行了大幅度优化和改良,最终确定了一套成熟的方案。但在工程建设管理过程中,没有一成不变的解决方案,要根据不同的实际情况,采用不同的解决办法。因此,防爆控制小屋在一定程度上可以作为一个建设理念,根据新的问题进行相应调整和改变,但是宗旨都是为了给工程建设解决难题,给一线生产使用人员提供现代化自动化的管理工具,给企业节约工程项目建设期和运营期的成本支出,提高工程建设和生产运营的管理效率。

作者:张宪(合肥合燃华润燃气有限公司)

共有访客发表了评论 网友评论

  客户姓名:
邮箱或QQ:
验证码: 看不清楚?
Baidu
点点taptap手机网址