目前,测量液位的方法很多,但在化工生产过程中,存在着许多特殊的环境介质,对这些具有腐蚀性或含有结晶颗粒、黏度大、易凝固的液体不易用普通差压变送器,因介质往往把取压元件腐蚀或堵塞,无法测到准确液位。通常情况下采用双法兰差压变送器就能很好地解决这一问题。但由于双法兰差压变送器价格昂贵,投资较大。由此采用单法兰差压变送器代替双法兰差压变送器来达到生产测量的要求,节约成本40%。


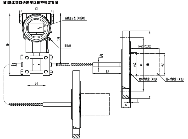
从双法兰差压变送器和单法兰差压变送器结构示意图对比中不难看出,单法兰差压变送器仅在正压测(H侧)有毛细管及法兰,负压侧可以接导压管,单法兰差压变送器的安装方法也要跟这种结构相适应。
1、在不同液位测量中的替代和安装
双法兰差压变送器一般用于密闭容器的液位测量上。而在正常情况下,液位不会到达容器顶部,这样就为单法兰差压变送器代替双法兰差压变送器提供了可能性。在不同的介质和环境下,单法兰差压变送器替代双法兰差压变送器的安装方式是不同的,有代表性的有以下两种:
①对于中温以下无腐蚀或含有杂质颗粒的介质
在这种介质下,用taptap点点真人体育 (无毛细管)来替代双法兰毛细管差压变送器。
a、在常温下,如图3,单法兰液位变送器的正压室凸法兰与容器的低端法兰相连,将容器的高端法兰用盲板堵死。在容器顶部做一取压口,用导压管与单法兰液位变送器的负压室相连。变送器的量柱为:L=H×ρ;零点迁移量为:L0=h×ρ;在最低液位时,作用于变送器的静压为:△P0=h×ρ;在最高液位时,作用于单法兰液位变送器的静压为:△P=H×ρ+h×ρ。这些公式中H为最高液位和最低液位的高度差;h为最低液位到变送器低端法兰中心线的高度;ρ为容器内介质的密度。

b、在中温度下,如图4,将在容器顶部的取压管与变送器之间加一隔离罐,加装隔离液,这样就避免了对单法兰液位变送器的损坏。单法兰液位变送器的量程不变,零点迁移量为:L0=h×ρ-h0×ρ0,公式中h0为隔离液高度;ρ0为隔离液密度。

②对于腐蚀性强、黏度大的介质及高温介质
在这种情况下,用单法兰差压变送器(带毛细管)来替代双法兰差压变送器。
a、在常温下,如图5所示,将单法兰远传差压变送器带毛细管的法兰与容器的低端法兰连接,从容器顶部取一导压管与变送器负压室相连。单法兰差压变送器的量程为L=H×ρ;零点迁移量为L0=h×ρ+h1×ρ1;在最低液位时,作用于变送器的静压为△P=h×ρ+h1×ρ1;在最高液位时,作用于变送器的静压为△P=H×ρ+h×ρ+h1×ρ1,公式中的h1为单法兰差压变送器正压室中心线相对容器低端法兰中心线高度;ρ1为单法兰差压变送器毛细管内介质密度。

b、在高温下,如图2b,在变送器与取压管中间加装隔离罐,以避免高温对变送器的损坏。注意,这时所选用的隔离液为在此温度下不沸腾的介质。变送器的量程不变,零点迁移量为:L0=h1×ρ1+h×ρ-h0×ρ0。

在不同的介质和环境下,用单法兰差压变送器替代双法兰毛细管差压变送器进行液位测量,需根据温度高低、腐蚀性强弱、黏度大小等因素来选择安装连结的方式,并加装相应的设施。
作者:范潇
