固定床渣油加氢装置由于具有很强的原料适应性和加工灵活性,能够实现渣油的清洁高效利用,经济效益高,是目前石化行业应用较多的渣油处理装置,而且还在不断新建。目前加氢装置反应器大都以固定床反应器为主,也有少量的沸腾床、浆态床、液相加氢反应器。以固定床反应器为例,1个反应器从上到下至少有3个以上的床层测温,每个床层最少需要5-10个测温点,5Mt/a渣油加氢反应器甚至每一层会有24-26个测温点。1个反应器中要装几十个测温点,4个反应器中要装上百个测温点。由于反应器是高温高压容器,不宜开孔太多,普通的热电偶已无法满足要求,所以只能采用高温高压多点柔性铠装热电偶来解决。催化剂床层的径向温差直接反映了反应器的运行状态,现行生产过程要求床层温度在反应器内均匀分布,并对每个测温点进行实时监控。因此对反应器催化剂床层测温元件的精度、可靠性、安全性提出了很高的要求。
本文就反应器催化剂床层测温的重要性、目前加氢装置高温高压多点柔性热电偶的结构类型、使用中的一些问题进行了阐述,并提出了解决方案。
1、反应器催化剂床层测温的重要性
1.1 测量径向温差
催化剂床层的径向温差一般不得大于床层高度直径比的3.5倍,通常为3-7℃,以下几方面原因可能导致温差太大,此时须引起操作人员的注意,严重时需停工检修。
1)催化剂装填疏密度。
2)反应物偏流,进料量太低、分配盘泡罩堵塞、杂质堵塞催化剂缝隙。
3)冷氢箱喷嘴堵塞。
4)床层催化剂结焦、架桥。
5)测温传感器安装高度有误。
1.2 测量不同床层温度形成温度梯度
通过自上而下的温度梯度来判断反应的催化剂活性、原料性质、固定温升等,温升过高时需加大上层注冷氢量。
2、高压多点柔性热电偶技术要求
高压多点柔性铠装热电偶技术要求主要如下。
1)偶丝尺寸:单管单点不小于φ8mm,单管多点不小于φ10-φ16mm。
2)热电偶分度号:K;结构为接地型或绝缘型,推荐使用绝缘型。
3)允差等级或精度:±1.5℃或±(t×0.4%),t为实际测量温度,℃。
4)响应时间:输出变化至阶跃变化的63.2%时,所需时间不超过15s。
5)在铠管内的多点热电偶不得公用偶丝的正极或负极。
6)管束应限制在直径为64mm(2.5″)的圆内,热电偶铠管应允许25mm的弯曲半径。
7)热电偶的连接法兰、铠装层、T型支架、固定管卡、二次密封腔、二次密封腔的泄漏测压口接口材质采用347牌号不锈钢,热电偶制造中使用的347牌号的不锈钢应进行稳定热处理。
3、高压多点柔性热电偶铠管结构形式
按制造工艺分单管单点和单管多点。
1)单管单点是将1对偶丝、氧化镁预填在保护管内经拉伸而成,成品热电偶的铠套外径一般为φ8 mm。该结构的优点是安装方便、损坏后可单独更换,缺点是强度差、卸剂时易损坏、氧化镁密度较小,铠管破碎后易造成渗氢。
2)单管多点是将多对偶丝、氧化镁预填在保护管内经挤压而成,成品热电偶的铠管外径一般为φ10mm。每根铠管内不超过4个测温点;铠管外径为φ13mm时,每根铠管内不超过9个测温点。T型梁结构每根铠管内不超过2个测温点。该结构的优点是强度高、卸剂时部件不易损坏、氧化镁密度较大,铠管破碎后不易造成渗氢;缺点是损坏后不能单独更换。
4、高压多点柔性热电偶的测点布置方式
高压多点柔性热电偶的布置方式分为线性布置和环形布置:线性布置的优点是反应器内壁安装支撑预埋件仅1块,安装简单、强度高,卸剂时不易损坏热电偶;缺点是测温点少。环形布置的优点是测温点多;缺点是反应器内壁安装支撑预埋件多,需制造厂二次设计制作支架,安装复杂、强度较低,卸剂时易损坏热电偶。
4.1 线性布置方式
以T-型梁结构为代表,按反应器直径又分为3点和6点测温,3点的测点位置分别为反应器直径的1/3,1/2,2/3;6点的测点位置分别为反应器直径的1/7,2/7,3/7,4/7,5/7,6/7。其结构又分带外套管和不带外套管两种。
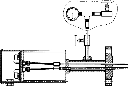
1)带外套管的T-型梁结构热电偶是将几根端部带堵头的外保护管分别焊接在T-型钢梁上,外套管另一端和T-型钢梁均焊接在法兰内面上,法兰上布置与测温点相同数量的钻孔,填料函用于将热电偶铠管从法兰外面插入外保护管内,并添加火山岩填料密封,几个铠管在法兰外面分别用锁紧螺母锁紧,结构如图1所示。由于外套管内设计为常压,因而该位置锁紧螺母并不承压,当外套管因渗氢造成套管内带压,严重时将铠管弹出造成无法测温,氢气泄漏又会带来极大的安全隐患,在反应器直径大于3200mm的场合,一般不推荐使用。

图1 带外套管T-型梁热电偶
2)不带外套管的T-型梁结构热电偶是将几根热电偶铠管分别直接焊接在T-型钢梁上,铠管另一端和T-型钢梁均焊接在法兰内面上,二次密封腔一侧与法兰外面焊接,热电偶铠管在二次密封腔接线箱侧再次焊接,如图2所示。该结构解决了外套管渗氢的问题,但因为铠管直接和催化剂接触,在卸剂时易损伤铠管造成内漏,解决内漏的办法通常是在铠管的接线盒端增设密封堵头,当发生内漏时将线缆剪断,用堵头堵死。

图2 不带外套管T-型梁热电偶
4.2 环形布置方式
按反应器直径可分为8,12,16,24点等,呈等面积布置;其结构又分焊接密封和填料加锁紧螺母密封2种。
1)焊接密封是将若干根热电偶铠管的测量端分别用管卡固定在由制造厂配带的钢梁上,铠管另一端焊接在法兰内面上,二次密封腔一侧与法兰外面焊接,热电偶铠管在二次密封腔接线箱侧再次焊接,结构如图3所示。该结构优点是不会因铠管移动造成大的泄漏和安全事故;缺点是损坏后不能单独更换,整体吊装安装不方便,焊缝进行热处理后会抵消应力,几个开工周期内不会出现氢鼓泡、晶间开裂的现象。但如果焊缝热处理不当以及诸如焊缝宽度、焊接电流、焊层多少等焊接要求不能满足时,加上停工时的硫化氢腐蚀,可能会较早出现氢鼓泡、晶间开裂的现象,给生产带来安全隐患。

图3 焊接密封示意
2)填料加锁紧螺母密封是将若干根热电偶铠管的测量端分别用管卡固定在由制造厂配带的钢梁上,铠管另一端用石墨填料密封加压紧螺母密封。在法兰外面上焊接密封底座,密封底座上设置与二次密封腔连接的外螺纹接口和若干用于铠管密封的内螺纹接口,结构如图3所示。该接口与密封转换接头外螺纹端螺纹连接,建议现场采用密封焊,转换接头内螺纹端经填加石墨填料后用锁紧螺母锁紧,结构如图4所示。该压力等级只能达到PN70,热电偶延伸线在二次密封腔接线箱侧也采用填料和锁紧螺母密封,结构如图5所示,该压力等级可达到PN320。该结构优点是损坏后能单独更换、可拆解安装,安装方便;缺点是一旦填料老化就会严重影响密封造成泄漏,采用填料密封后经受不了拉力,由于反应器内铠装热电偶与催化剂结焦成片、成块,一旦反应器催化剂床层塌陷下沉时,会将热电偶元件拉到反应器内,产生严重泄漏。2014年中石化某公司就出现过该事故,导致装置被迫停工。

图4 填料加锁紧螺母密封示意

图5 填料加锁紧螺母密封总装示意
5、渣油加氢反应器高温高压多点铠装热电偶的研制
5.1 开发热电偶套管合金材料
为解决多点铠装热电偶在高温高压临氢状态下正常工作,解决347牌号不锈钢是焊缝处容易高温氢脆腐蚀和不耐硫化氢腐蚀的问题,开发了镍、铬、钼、铌、钽、铝、硅和微量稀土元素构成的新型不锈钢材料,以提高高温下的强度和耐高温氢脆开裂及耐硫化氢腐蚀的性能。新材料以铬、铌、钼、钽为高温基础元素,特别提高了钼元素比例,以镍为平衡,铝、铌加钽组合比例相应提高,铝元素是抗硫和硫化氢腐蚀的理想材料。通过优化不锈钢中各元素的组成,镍铬合金中所含的钼、铌固溶体强化效应,调整能形成稳定碳化物元素的比例,能够降低碳氢化合反应和反应速率、减少氢溶解度和在铁晶格中的扩散系数,这些元素也使该合金具有卓越的耐腐蚀特性。实验证明:新材料制成的φ10mm铠装热电偶套管,在1100℃高温下仍有很高的强度、韧性和耐腐蚀性。
5.2 研制铠装热电偶可拆卸结构
为解决焊接密封结构无法独立更换热电偶和填料加锁紧螺母密封不可靠的问题,研制了多支铠装热电偶与高压法兰连接采用可拆卸结构,密封方法采用高压阀门结构原理,高压阀门结构可拆卸装配示意如图6所示。考虑到高温高压下材料的膨胀系数,包括法兰在内的各个部件分别采用不同材料,进行热处理工艺,优化材料性能,高压焊接式结构装配示意如图7所示。

图6 高压阀门结构可拆卸装配示意

图7 高压焊接式结构装配示意
5.3 热电偶铠管制作工艺的改进和检验
5.3.1 铠装制作工艺的改进
为了解决单管多点组合铠装热电偶容易产生内漏问题,研制了单管多点实芯铠装热电偶。按不同数量要求制作氧化镁瓷珠;将各点长度与偶丝直径正确计算,制成裸体热电偶,定位穿入大直径氧化镁瓷珠,再将穿好瓷珠的热电偶塞入不锈钢管内,挤压变径成型。改进后的单管多点实芯铠装热电偶与常规方法制做的铠装热电偶相比,同样直径的产品,保护管壁壁厚增加了一倍,偶丝直径增加了5倍,管内填料致密性高,套管不封闭耐压可达100MPa而不内漏。综合性能:强度高、测温范围大、各测温点分离绝缘、极高的致密性,使用周期均大幅延长。
5.3.2 铠装热电偶铠管表面处理
为了进一步延长铠装热电偶的使用寿命,在φ6mm以上、铠管壁厚1.0mm以上的铠装热电偶表面复合一层抗氢脆、耐腐蚀的保护层,通过加热、溶解、挤压等工艺,使保护层与铠装基体冶金结合。这种保护层能有效隔绝介质与基体的直接接触,可以更加延长铠装热电偶的使用寿命。
5.3.3 压力试验
为保证产品的密封性,增加了密封部件的气密性试验和高温高压型试验:
1)常温气密性测试装置。试压气源:氦气;指标:耐压30MPa,保压1h无泄漏,则为合格。
2)高温高压型试验。试压介质:高温导热油;指标:温度450℃、压力50MPa,保压12h无泄漏,则为合格。
3)二次密封腔耐压测试。试压介质:水;温度:常温;耐压30MPa,保压1h无泄漏,则为合格。
5.3.4 高温高压多点铠装热电偶的技术指标
高温高压多点铠装热电偶的技术指标如下:
1)温度范围:0~800℃,极限1000℃。
2)耐压能力:常温,一次密封耐压100MPa,二次密封耐压30MPa。
3)使用场合:所有加氢反应器、高温高压、临氢、腐蚀性环境。
6、结束语
加氢反应器多点铠装热电偶因技术要求高,长期以来被国外品牌垄断,特别是高温高压渣油、蜡油加氢装置反应器更是如此。
通过中国石油化工股份有限公司金陵分公司、中石化洛阳工程有限公司与仪表厂联合攻关,经反复多次试制、实验,研制出了具有自主知识产权的渣油加氢多点高压铠装热电偶,产品经中石化金陵石化分公司1.80Mt/a渣油加氢装置第四反应器使用,在温度385℃,压力18.5MPa,5.5kt/d处理量状态下,效果达到设计要求。
