水泥厂专用热电偶用于水泥厂窑尾烟温或水泥熟料温度测量,外护管耐氧化、耐硫化、耐磨、抗冲击、耐液态铁粉、石灰石等水泥料腐蚀、抗热震性、使用寿命长、价格适中。水泥厂窑尾烟温测量、水泥熟料测温是水泥行业测温难点,普通热电偶不耐用,水泥厂专用热电偶可很好解决这一难题,超时间稳定工作。

水泥厂专用热电偶特点
水泥厂专用热电偶保护管(铁铝瓷T5)具有耐氧化、耐硫化、耐磨、抗冲击、耐液态铁粉、石灰石等水泥料腐蚀、抗热震性、使用寿命长、价格适中和长期使用的特点,整支产品具有抗震动结构设计。
水泥厂专用热电偶使用寿命
水泥窑窑尾烟温、水泥熟料测温热电偶的一般使用寿命为4个月。
热电偶允差

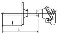
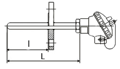
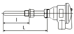
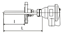
水泥厂专用热电偶外形示意图
1、无固定装置水泥厂专用热电偶

2、螺纹安装水泥厂专用热电偶

3、活动法兰水泥厂专用热电偶

4、固定法兰安装水泥厂专用热电偶

5、螺纹安装水泥厂专用防爆热电偶

6、固定法兰安装水泥厂专用防爆热电偶

水泥厂专用热电偶选型表
WR①②-③-④⑤⑥⑦⑧-⑨/⑩/⑪-⑫-⑬
①温度传感器类别
[N]:K型热电偶(镍铬-镍硅)
[P]:S型热电偶(铂铑10-铂)
②热电偶对数
[省略]:单支热电偶
[2]:双支热电偶
③热电偶特殊用途标记
[NM]:耐磨结构设计
④安装固定形式
[1]:无固定装置
[2]:固定螺纹(螺纹尺寸由使用单位提供)
[3]:活动法兰
[4]:固定法兰安装(法兰尺寸由使用单位提供)
⑤ 热电偶接线盒
[3]:防水接线盒
[4]:防爆接线盒
[5]:不锈钢接线盒
⑥ 热电偶直径
[0]:Φ16mm套管
[1]:Φ22mm套管
[2]:Φ25mm套管
⑦耐磨头材料/最高使用温度/用途
[5]:铁铝瓷T5/1000℃/专用于水泥厂窑尾烟温或水泥熟料温温度测量
[N]:特殊保护管材质和结构定制产品
⑧测温元件形式
[0]:国产偶丝/国标偶丝直径/常规供货
[7]:国产GH3039保护管Φ6mm铠装热电偶芯
[8]:德国进口Inconcl镍基合金外护管铠装热电偶芯/常规配置
[9]:德国进口偶丝/超长使用寿命
⑨热电偶总长L(单位:mm)
[***]:***/注1
⑩插入长度l(单位:mm)
[***]:***/注1
⑪耐磨段长度
[3]:耐磨头长度300mm(通常直径Φ16mm耐磨热电偶选用)
[4]:耐磨头长度400mm(通常直径Φ22mm耐磨热电偶选用)
[5]:耐磨头长度500mm(通常直径Φ25mm耐磨热电偶选用)
[9]:其他尺寸
⑫热电偶精度等级
[2]:Ⅱ级精度/国内热电偶生产厂常规供货
[1]:I级精度/协议供货
⑬固定法兰和非标准螺纹安装补充说明
[螺纹要求]:螺纹尺寸及材质要求/见注2
[法兰要求]:法兰规格尺寸及法兰材质要求/见注2
注1:WR□□-NM-13□□□和WR□□-NM-33□□□型水泥厂专用热电偶选型时仅需要确认总长L(总长等于插深)和耐磨段长度即可;WR□□-NM-2□□□□和WR□□-NM-4□□□□型水泥厂专用热电偶选型时必须标注总长、插入深度和耐磨段长度,通常约定:总长=插深长度+150mm。
注2:水泥厂专用热电偶如选用固定法兰或螺纹安装方式,用户订货时必须标注法兰标准/法兰规格/法兰材质或螺纹尺寸/螺纹材质要求。
