该井岩气三甘醇脱水橇装置工艺流程包括井口模块、除砂橇、分离计量橇、清管出站橇、计量装置和放空系统。采自井口的原料气经一级节流后进入除砂工艺,除去砂砾后,再经二级节流进入气液分离器进行分离,分离后的原料气输至脱水装置处理,脱水后的天然气经计量后,通过井中心站内的脱水装置进行脱水处理,再进行管线外输。

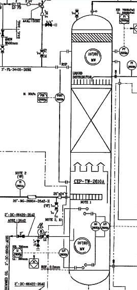
脱水接触塔图解
1、三甘醇脱水原理优势及再生原理
三甘醇水溶液对水有高的湿溶度,再生容易、浓度可达98.7%,蒸汽压低、携带损失小、露点降高(28-58℃)。

2、天然气进口导流板
作用是分散流体,吸收或控制液体的动量。湿天然气进入塔后,经过进口导流板,使流体的动量转到切向流量路,流体环绕容器壁流动,产生离心力作用,重力使离开入口装置的流体产生初分离。
3、烟囱塔盘
湿天然气经入口导流后向上流动,并沿烟囱塔盘的烟囱通道上升至第一层填料。烟囱状的通道有利于气体的扩散,顶部的帽便于气体中的杂质以冷凝的形式分离出去。
4、规整填料
接触塔从上至下共设置12层整床高的填料和2层半床高填料,填料材质316SS不锈钢,上下填料支撑材质也为315SS不锈钢。
5、顶部捕雾器
能有效的捕获天然气中携带的液体,主要安装在TEG塔顶部,一般为丝网型,6”厚,可拆卸,材料为316SS不锈钢。
6、贫三甘醇进口分配器
贫三甘醇进口分配器主要是将进入接触塔的贫三甘醇分配均匀,使贫三甘醇与湿天然气均匀充分的接触。
7、流冷凝器
主要是控制再沸炉出口气体温度;同时为来自接触塔的富三甘醇(富液)进行预热,冷凝器的温度对三甘醇再生起着很重要的做用,为了防止泛液和甘醇损失,回流冷凝器的温度一般设定在100℃。
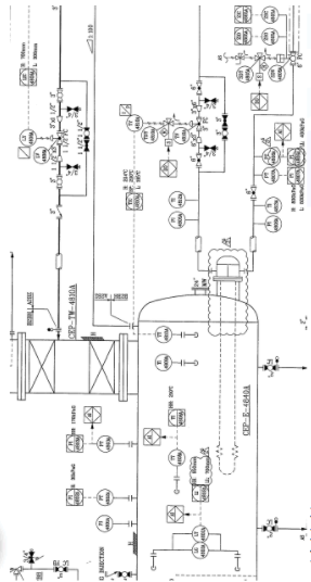
三甘醇脱水装置-再生橇
贫/富三甘醇换热器在整个系统中有两个,作用都是利用贫干醇的热量给富甘醇进行加热,闪蒸罐换热器:用于将富液中的气体和轻烃从罐内闪蒸出来进入火炬。

1、贫甘醇由塔上部进入吸收塔,由上而下与由下而上的湿天然气充分接触,吸收湿天然气中的水份。吸收水份后成为富液的甘醇溶液在塔下部出口流出,经甘醇泵进入精馏柱换热盘管,被精馏柱顶蒸汽加热至约60℃后进入闪蒸罐。
2、甘醇由闪蒸罐下部流出,经过闪蒸罐液位控制阀,进入过滤器和活性炭过滤器,通过过滤器除去富甘醇中50μm以上的固体杂质,通过活性炭过滤器吸附掉富液中的部分气体和物质,过滤器均设有旁通管路。
3、经过滤器后富甘醇进入换热器,与重沸器下部储液罐流出的热贫甘醇换热升温至130-160℃后进入精馏柱。
4、在精馏柱中,通过精馏段、塔顶回流及塔底重沸的综合作用,使富甘醇中的水份分离出塔,塔底重沸温度为196-202℃,甘醇重量百分比浓度约为99.0%。
5、储液罐中的贫甘醇经贫液汽提柱溢流至重沸器下部甘醇储液罐,在贫液汽提柱中可由引入汽提柱下部的热干气对贫液进行汽提,经过汽提后的甘醇重量百分比浓度可达99.5-99.8%。
6、贫液经过储液罐外壁的散热,温度降至180℃左右出储液罐,进入板式贫富液换热器,与富甘醇换热,温度降至45-60℃左右进甘醇泵,由甘醇泵增压后进套管换热器与外输气体换热至25-40℃进入吸收塔顶部循环利用。
