单晶硅变送器包括表压、差压、绝对压力、高静压差压等多个品种。
单晶硅压力变送器广泛应用于石油、化工、电力、冶金、水务、酿造等工业领域。长期以来,fkswng仪表制造有限公司以产品的卓越品质和优质的售后服务,赢得了用户一致的好评。

■ 运输
在校验之后,仪器被包装在纸箱(GB/T13384-2008)中以保护免遭损伤。
■ 储藏
储藏仪器无需任何特殊处理。对储藏期没有限制,但保质期仍按公司规定的期限一致。
■ 产品标识
产品铭牌标识包括序列号、量程、精度等级、输入电压、输出、出厂日期等相关信息。
重要:查询时务必提供仪表序列号。
■ 压力(绝压)变送器工作原理
■ 差压变送器工作原理

警告:为了确保操作员以及工厂的安全,务必由经过培训的人员按照型号的技术数据进行安装!
■ 安装
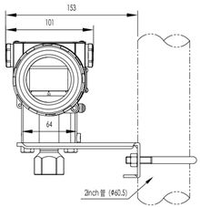
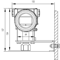
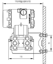
变送器显示壳体可以相对传感器旋转约360°,而不影响性能和内部配线。不要强制旋转传感器部分,用2mm六角扳手来松开或锁定紧定螺钉。这样可对电子线路连接和输出液晶表头影响量达到最小。安装如下图所示:

单晶硅压力变送器管道安装

单晶硅变送器墙面安装

单晶硅差压变送器管道安装
为了正确安装单晶硅压力变送器,必须遵循以下几点:
1、 引压管道尽可能短,并避免急弯折。
2、 引压管道的安装坡度不应小于1:12,以免引起沉淀。
3、 引压管道在连接到变送器前,必须用压缩空气吹一遍,最好用被测介质冲洗一遍。
4、 如果介质是液体,则应彻底放空引压管道。
5、 引压管道的布局,应使得被测液体中的气泡或被测气体中的沉淀物能回流到过程管道中。
6、 安装过程管道时,不得有任何泄露。
警告:对于危险场所(即具有火灾与爆炸危险区域)的安装,在进行电器连接之前,确保符合安全标志牌上的安全注意事项。否则可能造成火灾核爆炸。
■ 电气连接
进行电气安装时,必须遵循有关指导规程!
由于变送器不带电源开关,所以系统必须配置过电流保护或电源切断装置。
检查工作电压是否和铭牌上规定的一致。电源和输出信号共享一根两芯屏蔽电缆。电气连接可通过NPT1/2或M20×1.5电缆入口与接线端子连接。导线连接端子可接截面积为2.5mm2以下导线。

电气连接图
可以通过PC机或笔记本电脑经调制解调器对变送器进行操作。调制解调器可以并联到信号回路的任意处。变送器于调制解调器是通过叠加在4-20mA输出信号上的交流信号进行通信的。次调制不改变平均值,因此不影响测量信号。调制解调器和电源装置之间的电阻必须不小于250Ω。若按标准安装不能达到此值,则需附加一电阻。
■ 使用
安装好单晶硅压力变送器后,接通电源即可投入运行。
• 通电前必须检查以下各项:
——过程连接
——电器连接
——变送器的引压管及测量腔体充满介质。
• 投入运行,应按以下步骤操作截止阀。
1、 若有截止阀,打开截止阀,接通压力;
2、 打开三阀组上的平衡阀(此项仅适用差压变送器,压力变送器无此项);
3、 打开正腔截止阀;
4、 关闭平衡阀(此项仅适用于差压变送器,压力变送器无此项);
5、 打开负腔截止阀(此项仅适用于差压变送器,压力变送器无此项);
• 若要退出运行变送器,则按相反的步骤操作。
• 变送器输出范围:
如所测压力在铭牌所标的范围内,则输出电流信号在4-20mA。如果压力低于标定的测量范围,输出信号在3.9-4.0mA之间,如果压力高于标定的测量范围,输出信号在20-20.5mA之间。输出信号极限:Imin=3.9mA,Imax=20.5mA。
报警电流模式可设置,低报模式(最小)为3.7 mA,高报模式(最大)为21mA,不报模式(保持)为保持故障前的有效电流值,变送器出厂标准设置为高报模式。
• 零位校正
安装单晶硅变送器时,可能会出现安装引起的零位偏移(如安装位置倾斜、差压变送器水平位置不一致、及环境温度影响)此时必须校正零位偏移。
带有按钮控制单元的变送器进行零点校正时,变送器必须达到其工作温度(约通电5分钟),具体方法详见下一章节(菜单操作)。
单晶硅压力变送器的外部控制按钮位于铭牌背后。如需使用,松开铭牌螺丝并旋转90度;完成校验程序后安装相反程序固定。图示如下就地按钮:

图6 就地按钮
• 零位和量程校验
校验智能变送器可以采用下面几种方法:
1、 变送器辅助单元中的就地“按钮”按键。
2、 使用手操器。
3、 使用PC组态软件。
本说明书在“菜单操作”章节详细介绍第一种方法;其他方法在随后章节或有关组态工具说明书中说明。
■ 菜单操作
带液晶表头时,可通过变送器顶部的“Z键”和“S”按键对变送器进行如下组态。
注:以下液晶显示表头显示的菜单项,分别显示在液晶表头的第一行或第二行。如下图所示液晶表头(图7)和菜单结构树(图8):
• 退出菜单(EXIT)
• 查看测量值和计算值(VIEW)
• 加压设定0%(GET 0%)
• 加压设定100%(GET 100%)
• 输入数值设定0%(SET 0%)
• 输入数值设定100%(SET 100%)
• 零位校正(SHIFT ZERO)
• 平行迁移(OFFSET SHIFT)
• 阻尼(DAMPING)
• 显示类型选择(DISPLAY)
• 单位选择(UNIT)
• 输出特性选择(FUNCTION)

图7 液晶显示表头
图8 菜单结构树
操作说明:
1、按键定义
针对就地按钮“Zero”和“Span”,有以下三种组合的按键定义:
1.1 “确认”键:同时按下按钮“Zero”和“Span”,保持0.2秒后再全部松开;每执行一次该操作,就输入了一次“确认”键;
1.2 “左”键:按下按钮“Span”,保持0.2秒后再松开;每执行一次该操作,就输入了一次“左”键;
1.3 “右”键:按下按钮“Zero”,保持0.2秒后再松开;每执行一次该操作,就输入了一次“右”键。
提示:在操作就地按钮时,推荐使用无磁性材料工具,否则有可能导致单键按下无效果、或单键按下产生双键按下的效果的情况发生。
2、菜单启动与退出
2.1 在菜单未被启动的状态下,输入一次“确认”键,则菜单被启动,显示如图9所示:
3.菜单浏览
菜单启动后,可通过输入“左”键和“右”键来浏览菜单。
3.1 “左”键为从下向上循环显示菜单树中的各菜单项,在如图9所示的情况下,输入一次“左”键,显示器显示如图10所示;再输入一次“左”键,显示器显示如图11所示。


3.2 “右”键为从上向下循环显示菜单树中的各菜单项,在如图9所示的情况下,输入一次“右”键,显示器显示如图12所示;再输入一次“右”键,显示器显示如图13所示。


4、菜单选择
在菜单浏览时,输入一次“确认”键,则程序会执行该菜单对应的功能。
5、数据输入
用户在通过菜单进行仪表参数设置时,可以有两种方式进行数据输入:
5.1 数据选择
举例说明:假设当前单位是“kPa”、菜单未启动,现在要将单位改为“bar”,可按下列步骤进行:
5.1.1 输入一次“确认”键(启动菜单),显示器显示如图9所示;
5.1.2 输入二次“左”键或十次“右”键(菜单浏览),显示器显示如图11所示;
5.1.3 输入一次“确认”键(菜单选择),则程序进入单位设置功能,显示如图14所示:


5.1.4 输入五次“左”键或九次“右键”(数据选择),显示器显示如图16所示;
5.1.5 输入一次“确认”键(数据输入),程序将单位更改为“bar”,并显示提示信息,显示器显示如图17所示;


5.1.6 输入一次“确认”键,清除提示信息,程序返回到菜单浏览状态,显示如图11所示;
5.1.7 输入十次“左”键或二次“右”键(菜单浏览),显示器显示如图9所示;
5.1.8 输入一次“确认”键,退出菜单功能,菜单返回未启动状态。
此时,可以观察到单位已变为“bar”。
5.2 数据编辑
举例说明:假设当前阻尼值为0.1s,菜单未启动,现在要将阻尼值改为1.0s,可按下列步骤进行:
5.2.1 输入一次“确认”键(启动菜单),显示器显示如图9所示;
5.2.2 输入四次“左”键或八次“右”键(菜单浏览),显示器显示如图18所示;


5.2.3 输入一次“确认”键(菜单选择),显示器显示如图19所示;
5.2.4 输入一次“左”键或“右”键,进入数据编辑状态,此时在阻尼值单位“s”上方的字符“0”上出现闪烁的光标。
光标闪烁:光标出现时,显示器显示如图20所示;光标消失时,仍显示原来的字符;

光标移动:进入数据编辑状态后,每输入一次“左”键,光标将向左移动一位,如果此位是小数点,则光标自动再左移一位;如果已经是最左边一位,则光标移动到最右边一位;
数值翻转:进入数据编辑状态后,每输入一次“右”键,光标处的数字将加1,即“0”变成“1”,“1”变成“2”等等,特殊的变化有“9”变成“0”,空格符“ ”变成“1”,“+”变成“-”,“-”变成“+”;
5.2.5 输入二次“左”键,将光标移动到字符“1”上;
5.2.6 输入九次“右”键,将光标处的字符“1”翻转成“0”;
5.2.7 输入一次“左”键,将光标移动到小数点左边第一个字符“0”上;
提示:移动光标时,光标将自动跳过小数点。
5.2.8 输入一次“右”键,将光标处的字符“0”翻转成“1”,显示器显示如图21所示;
5.2.9 输入一次“确认”键(数据输入),程序将阻尼值改为1.0s,并显示提示信息,显示器显示如图17所示;如果输入数据值超出了程序允许的范围,程序将提示错误,显示器显示如图22所示。此时,需要再输入一次“确认”键,清除错误提示信息,程序重新回到菜单浏览状态,显示器显示如图18所示。


5.2.10 输入一次“确认”键,清除提示信息,程序返回到菜单浏览状态,显示器显示如图18所示;
5.2.11 输入八次“左”键或四次“右”键(菜单浏览),显示器显示如图9所示;
5.2.12 输入一次“确认”键,退出菜单功能,菜单返回未启动状态。
操作指南
1、菜单启动与退出
1.1 在菜单未被启动的状态下,输入一次“确认”键,则菜单被启动,显示器显示如图9所示;
1.2 在图9所示状态下,输入一次“确认”键,则退出菜单,菜单返回未启动状态。
2.变量查看
2.1 启动菜单;
2.2 通过菜单浏览,选中“ VIEW”菜单,显示器显示如图12所示;
2.3 输入一次“确认”键,进入变量查看功能。此时将显示第一个变量“当前压力/差压值”、工程单位及变量序号,显示器显示如图23所示(假设此时的工程单位为“kPa”);

提示:“*******”表示不确定的压力/差压值。
2.4 输入一次“右”键,显示第二个变量“当前压力/差压值相对于量程的百分比值”、百分号“%”及变量序号,显示器显示如图24所示;

提示:“*******”表示不确定的压力/差压值的量程百分比值。
2.5 输入一次“右”键,显示第三个变量“输出电流值”、单位“mA”及变量序号,显示器显示如图25所示;

提示:“*******”表示不确定的输出电流值。
2.6 输入一次“右”键,则又显示第一个变量,显示器显示如图23所示;
2.7 如果依次输入“左”键,则逆序显示第一、第二、第三变量。
2.8 输入一次“确认”键,返回菜单浏览状态,显示器显示如图12所示。
提示:在“ VIEW”菜单功能中,“左”键与“右”键的功能与菜单浏览类似。
3.模拟量程加压零位迁移
举例说明:假设有一安装在工程现场的差压变送器,其传感器量程上限为40 kPa,模拟量程为0-20 kPa;实际工作时,在管道差压为0-20kPa时,显示器显示为0.1-20.1kPa,输出电流为4.08-20.08mA。
要求:显示器显示不变,输出电流值改为4~20mA。
操作步骤如下:
3.1 使管道差压为0kPa,此时显示器显示为+0.1kPa;
3.2 启动菜单,通过菜单浏览,选中“GET 0%”菜单,显示器显示如图13所示;
3.3 输入一次“确认”键,程序将模拟量程改为0.1-20.1 kPa,并显示提示信息,显示器显示如图17所示;
3.4 输入一次“确认”键,清除提示信息,程序返回到菜单浏览状态,表头显示如图14所示。
3.5 利用“ VIEW”菜单,可以查看到此时第一变量为0.1kPa,第三变量为4mA;
3.6 使管道差压为20kPa;
3.7 利用“ VIEW”菜单,可以查看到此时第一变量为20.1kPa,第三变量为20mA;
3.8 退出菜单,操作完成。
4、模拟量程加压满位设定
举例说明:假设有一安装在工程现场的差压变送器,其传感器量程上限为40kPa,模拟量程为0-40 kPa;实际工作时,在管道差压为0-20kPa时,显示器显示为0-20kPa,输出电流为4-12mA。
要求:显示器显示不变,输出电流值改为4-20mA。
操作步骤如下:
4.1 使管道差压为20kPa,此时显示器显示为+20kPa;
4.2 启动菜单,通过菜单浏览,选中“GET100%”菜单,显示器显示如图26所示;
4.3 输入一次“确认”键,程序将模拟量程改为0~20kPa,并显示提示信息,显示器显示如图17所示;
4.4 输入一次“确认”键,清除提示信息,程序返回到菜单浏览状态,表头显示如图26所示。
4.5 利用“ VIEW”菜单,可以查看到此时第一变量为20kPa,第三变量为20mA;
4.6 使管道差压为0kPa;
4.7 利用“ VIEW”菜单,可以查看到此时第一变量为0kPa,第三变量为4mA;
4.8 退出菜单,操作完成。

5.模拟量程零位设定
举例说明:假设有一安装在工程现场的差压变送器,其传感器量程上限为40kPa,模拟量程为0-20kPa;实际工作时,在管道差压为 -4~20kPa时,显示器显示为 -4~20kPa,输出电流为3.9-20mA。
要求:显示器显示不变,输出电流值改为4~20mA。
操作步骤如下:
5.1 启动菜单,通过菜单浏览,选中“ SET 0%”菜单,显示器显示如图27所示;
5.2 输入一次“确认”键,显示器显示模拟量程下限值0kPa,如图28所示;


5.3 输入一次“左”或“右”键,进入数据编辑状态,显示器上出现闪烁的光标;
5.4 输入三次“左”键,将光标移动到小数点左边第一个字符“0”上;
5.5 输入四次“右”键,将字符“0”翻转成“4”;
5.6 输入二次“左”键,将光标移动到字符“+”上;
5.7 输入一次“右”键,将字符“+”翻转成“-”,显示器显示如图29所示;

5.8 输入一次“确认”键,程序将模拟量程下限改为 -4kPa,并显示图17所示提示信息;
5.9 输入一次“确认”键,清除提示信息,程序返回到菜单浏览状态,表头显示如图27所示。
5.10 使管道差压为 -4kPa;
5.11 利用“ VIEW”菜单,可以查看到此时第一变量为 -4kPa,第三变量为4mA;
5.12 使管道差压为20kPa;
5.13 利用“ VIEW”菜单,可以查看到此时第一变量为20kPa,第三变量为20mA;
5.14 退出菜单,操作完成。
6、模拟量程满位设定
举例说明:假设有一安装在工程现场的差压变送器,其传感器量程上限为40 kPa,模拟量程为0~40 kPa;实际工作时,在管道差压为0~20kPa时,显示器显示为0~20kPa,输出电流为4~12mA。
要求:显示器显示不变,输出电流值改为4~20mA。
操作步骤如下:
6.1 启动菜单,通过菜单浏览,选中“SET100%”菜单,显示器显示如图30所示;
6.2 输入一次“确认”键,显示器显示模拟量程上限值40kPa,如图31所示;


6.3 输入一次“左”或“右”键,进入数据编辑状态,显示器上出现闪烁的光标;
6.4 输入四次“左”键,将光标移动到字符“4”上;
6.5 输入八次“右”键,将字符“4”翻转成“2”,显示器显示如图32所示;

6.6 输入一次“确认”键,程序将模拟量程上限改为20kPa,并显示图17所示提示信息;
6.7 输入一次“确认”键,清除提示信息,程序返回到菜单浏览状态,表头显示如图30所示。
6.8 使管道差压为0kPa;
6.9 利用“ VIEW”菜单,可以查看到此时第一变量为0kPa,第三变量为4mA;
6.10 使管道差压为20kPa;
6.11 利用“ VIEW”菜单,可以查看到此时第一变量为20kPa,第三变量为20mA;
6.12 退出菜单,操作完成。
7、数字零点调整
举例说明:假设有一安装在工程现场的差压变送器,其传感器量程上限为40 kPa,模拟量程为0~20 kPa;实际工作时,在管道差压为0~20kPa时,显示器显示为0.1~20.1kPa,输出电流为4.08~20.08mA。
要求:显示器显示改为0~20kPa,输出电流值改为4~20mA。
操作步骤如下:
7.1 使管道差压为0kPa,此时显示器显示为+0.1kPa;
7.2 启动菜单,通过菜单浏览,选中“ SHIFT”“ ZERO”菜单,显示器显示如图33所示;

7.3 输入一次“确认”键,程序修改数字零点值,并显示提示信息,如图17所示;
7.4 输入一次“确认”键,清除提示信息,程序返回到菜单浏览状态,显示器显示如图33所示。
7.5 利用“ VIEW”菜单,可以查看到此时第一变量为0kPa,第三变量为4mA;
7.6 使管道差压为20kPa;
7.7 利用“ VIEW”菜单,可以查看到此时第一变量为20kPa,第三变量为20mA;
7.8 退出菜单,操作完成。
8、模拟量程平行迁移
举例说明:假设有一安装在工程现场的差压变送器,其传感器量程上限为40 kPa,模拟量程为0~40 kPa;实际工作时,在管道差压为-20~20kPa时,显示器显示为-20~20kPa,输出电流为3.9~12mA。
要求:显示器显示不变,输出电流值改为4~20mA。
操作步骤如下:
8.1 使管道差压为0kPa,此时显示器显示为0kPa;
8.2 启动菜单,通过菜单浏览,选中“ OFFSET”“ SHIFT”菜单,显示器显示如图34所示;
8.3 输入一次“确认”键,显示器上显示当前压力/差压的量程百分比值+0.00%,如图35所示;


8.4 输入一次“左”或“右”键,进入数据编辑状态,显示器上出现闪烁的光标;
8.5 输入三次“左”键,将光标移动到小数点左边第一个空字符“□”上;
8.6 输入五次“右”键,将空字符“□”翻转成“5”,显示器显示如图36所示

8.7 输入一次“确认”键,程序将对模拟量程进行平行迁移,即同时修改模拟量程上限值和下限值,且修改量相等,方向相同。修改是按照下列公式进行的:
1) 量程差=量程上限–量程下限=40–0=40kPa
2) 修改量的百分比值=迁移后的百分比值–迁移前的百分比值=50.00%-0.00%=50.00%
3) 修改量=量程差×修改量的百分比值=40×50.00%=20kPa
4) 迁移后的量程上限=原量程上限–修改量=40–20=20kPa
5) 迁移后的量程下限=原量程下限–修改量=0–20=-20kPa
同时,显示器显示提示信息,如图17所示;
8.8 输入一次“确认”键,清除提示信息,程序返回到菜单浏览状态,表头显示如图34所示。
8.9 利用“ VIEW”菜单,可以查看到此时第一变量为0kPa,第三变量为12mA;
8.10 使管道差压为20kPa;
8.11 利用“ VIEW”菜单,可以查看到此时第一变量为20kPa,第三变量为20mA;
8.12 使管道差压为 -20kPa;
8.13 利用“ VIEW”菜单,可以查看到此时第一变量为 -20kPa,第三变量为4mA;
8.14 利用“ SET 0%”菜单,可以查看到此时的量程下限已变成 –20 kPa;
8.15 利用“SET100%”菜单,可以查看到此时的量程上限已变成 +20 kPa;
8.16 退出菜单,操作完成。
9.阻尼设定
请参见“二、操作说明5. 数据输入5.2 数据编辑”。
提示:有效的阻尼值范围是0.1s ~ 16s。如果输入参数超出了这个范围,程序不接受参数修改,并在显示器上显示错误信息,如图22所示。
10.显示类型选择
在菜单未启动时,显示器只显示“ VIEW”菜单中介绍的三个变量中的一个,可通过“DISPLAY”菜单进行选择设置。
举例说明:假设当前显示类型为第二变量“压力/差压值的量程百分比值”。
要求:将显示类型改为第一变量“压力/差压值”。
操作步骤如下:
10.1 启动菜单,通过菜单浏览,选中“DISPLAY”菜单,显示器显示如图37所示;

10.2 输入一次“确认”键,显示器显示第二变量,如图24所示;
10.3 输入一次“左”键或二次“右”键,显示器显示第一变量,如图23所示;
10.4 输入一次“确认”键,程序将显示类型改为第一变量,并显示图17所示提示信息;
10.5 输入一次“确认”键,清除提示信息,程序返回到菜单浏览状态,显示如图37所示。
10.6 退出菜单,可以观察到当前显示为第一变量“压力/差压值”。
11、单位选择
请参见“二、操作说明5. 数据输入5.1 数据选择”。
12、特性函数选择
特性函数有线性和线性平方根两种,可以通过“FUNC- ”“ TION”菜单进行选择设置。
举例说明:假设当前特性函数为线性。
要求:将特性函数改为线性平方根。
操作步骤如下:
12.1 启动菜单,通过菜单浏览,选中“FUNC- ”“ TION”菜单,显示器显示如图2所示;
12.2 输入一次“确认”键,显示器显示当前线性特性函数,如图38所示;
12.3 输入一次“左”键或一次“右”键,显示器显示线性平方根特性函数,如图39所示;


12.4 输入一次“确认”键,程序将特性函数改为线性平方根,并显示图17所示提示信息;
12.5 输入一次“确认”键,清除提示信息,程序返回到菜单浏览状态,显示器显示如图10所示。
12.6 退出菜单,可以观察到当前特性函数已被改为线性平方根,显示器显示如图40所示;特性函数为线性时,显示器显示如图41所示。


提示:“*”表示不确定的显示。
■ 维护
根据现场工作条件,参照上一节定期检查仪表输出信号。在正常情况下仪表也可能会有残留沉积物,故应根据现场应用条件定期对变送器进行清洗,清洗工作最好在室内进行。操作如下:
1、将过程法兰的螺钉按对角方向松开;
2、小心取下法兰,注意不要伤到传感器隔离膜片;
3、用软毛刷和合适的溶剂清洗传感器膜片,可以连同法兰一起清洗;
4、更换过程法兰的O型圈;
5、将过程法兰装到测量部件上,应小心不要碰到隔离膜片;(两个过程法兰的断面必须保持在同一个平面,与表壳保持正确角度)。
6、用扭力扳手以对角方向拧紧螺栓、螺母,检查是否有泄露。
■ 修理
在整个使用使用过程中都必须遵循有关安全规定,只有在清洗、检查、修理、更换失效件时才能拆开变送器。传感器只能由制造商修理。失效的变送器应送回fkswng仪表制造有限公司修理,如有可能请说明故障和原因。
