由于继电器触点的跳动或者开闭的一瞬间均会引起感性负载的变化,产生气体放电现象,但继电器触点通断的电流较小,触点间不会出现电弧,但会出现“火花放电”,这是由于触点电路中存在电感,则在断开时电感上会出现过电压,它与电源电压一起加在触点间隙上,使刚分开一点距离的触点间隙击穿而放电。由于能量所限,只会产生火花放电,触点间存在的电容与电感中能量的交替转换,使火花放电时隐时现,而成为一种高频信号,通过高频辐射、导线传递及分布电容等途径而串扰到相关电路中,造成干扰信号。再者火花放电对触点也会造成损伤,而会降低触点的使用寿命,电火花会烧蚀触点表面,使其表面不平造成接触不良的故障。
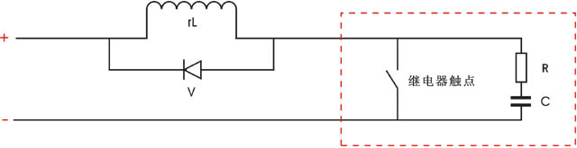
RC消火花电路
因此必须设法消除电火花,实用的消火花电路是RC消火花电路,如图所示。图中虚线框内是一种半RC吸收电路,RC消火花电路基本作用原理是,把R和C相串联后再并联在继电器触点的两端。使电感中的能量不通过触点而通过RC;它只吸收触点断开时产生的自感电势。在继电器触点接通瞬间,由于RC被短路,所以没有吸收作用,图中虚线框外是一种全吸收电路,在触点断开时自感电势经过二极管V在负载rL上消耗掉。在实际应用中选择以上电路中的一种就行了。但要注意的是,RC参数要选择适当,参数主要靠实验来决定,通常电容C可按负载电流1A/1μF选择。使用二极管时其正负极性应连接正确,且二极管V的耐压要够。需要指出的是RC消火花电路应紧靠继电器触点安装,并尽量使连接线短些,以保证消火花电路的效果。
如某厂热处理炉的温度自动控制系统,用温控仪(控制输出为继电器的PID调节器)及中间继电器来控制接触器的通、断进而控制电热器。但在使用中由于温度仪表波动大,尤其控温精度越高其波动越大,致使中间继电器动作频繁,由于继电器的电触点在接通的瞬间,触点上将有数倍于正常工作电流的冲击,而在断开瞬间,电路中储存的电磁能将以火花的形式在触点间释放。继电器触点过于频繁的动作造成电触点的发热、烧蚀、甚至熔焊,修磨几次就无法使用了,只能更换继电器。接触器已由于经常流过数倍的工作电流而发热,铁芯由于频繁动作使铁芯位移和磁路气隙增大,而产生很大的电磁噪声。上述问题不仅增加了维修工作量,有时还影响生产,为此该厂对电路进行了改造,使用RC消火花电路,RC电路选择的参数是:C为100pF/1000V,R的为1.2kΩ/1W。把RC元件直接接在继电器的电触点上,再就是设法减小接触器的工作电流,采取这些措施后,继电器的触点使用寿命大大延长。效果明显,在满足了生产要求的同时,还减轻了维修工作量,节约了维修费用。
RC消火花电路在显示仪表和无纸记录仪等上也在使用。fkswng仪表制造有限公司生产的带报警输出的仪表,在仪表电路板继电器输出端均使用了RC消火花电路,对延长继电器使用寿命和提高仪表抗干扰性能很有帮助。
《关于继电器触点火花的处理》-网友“宠盟一生”原创,转载自网络
因工作需要,这两周做了一个两相三线交流电机正反转驱动电路,电机需要在一定的角度范围内正反转。使用单片机的两个I/O脚控制正反转,一个脚控制原点检测,一个脚控制输入信号检测。
最开始,没有加原点检测,只是在软件中进行判断,此方案导致,单片机每次上电,无法获取电机的位置。后加上硬件上面的原点判断,MCU上电,判断电机是否在原点,没有在原点,强制回原点,然后检测输入信号状态,做对应的动作。
电机的驱动电路最开始使用的是继电器直接控制电机正反装,几次试验下来,发现继电器的触点吸和和释放瞬间,会直接导致MCU从新上电。在网上搜索了一下,发现继电器触点会在释放和吸和的瞬间产生火花,对MCU的电源进行干扰。网上的解决方案主要是给继电器触点之间加RC吸收电路,R主要为50-200R,1/2W,C为0.01uf-1uf之间,耐压要大于600V,因为当时手上没有这两个元器件故选择放弃此电路,改为可控硅驱动。
由于单片机的I/O口有限,正反转只能提供两个I/O口,没有管脚可以增加去做过零检测,故选择了带有过零检测的光电可控硅MOC3061,由于电机的功率不大,故用moc3061直接驱动电机工作,使用的过程中发现,moc3061会有硬件延时,导致电机的位置漂移。moc3061的驱动电路避免了火花,但是有时无法停止下来,排除软件的错误,发现是硬件上面有缺陷,无法达到要求,故有改回继电器驱动。
继电器驱动,自己做了一下几点:
1、继电器输出端的线路上面增加磁环(作用不是很明显)。
2、继电器和I/O脚之间使用光耦驱动代替二极管(作用不是很明显)。
3、找了一个坏的开关电源,本来想拆几块压敏电阻,发现没有压敏电阻,最有拆了两块高压陶瓷电容,把高压陶瓷电容加在继电器输出触点和零线之间,发现干扰消失。
