fkswng仪表在本文介绍电伴热的工作原理及电伴热带的组成和安装,并以新疆某项目为例具体阐述电伴热的组成、设计及应用。
水泥生产线余热发电项目很多都建在西北地区的青海和新疆,这些地区的冬季最低气温一般都能达到-30℃左右,在不考虑保温及伴热技术的情况下,暴露在相对开放空间中的设备及仪表会出现由于温度太低无法正常工作的现象,尤其在汽轮机停机时,会出现仪表导压管冻堵现象,甚至会发生爆裂,寒冷的天气随时会给这部分管道带来损害。为了保证设备的安全可靠及机组的正常运行,就需要在寒冷地区对设备及管道采取伴热,保证管道在严寒的冬季能够正常使用。
在工程中,伴热一般有电伴热和蒸气伴热两种方式,在余热发电伴热设计项目中一般采用电伴热。
1、电伴热简介
电伴热是用电热的能量来补充被伴热体在工艺流程中所散失的热量,从而维持流动介质最合理的工艺温度。电伴热是沿管线长度方向或罐体容积大面积上的均匀放热,温度梯度小,热稳定时间较长,具有热效率高、节约能源、设计简单、施工安装方便、无污染、使用寿命长、能实现遥控和自动控制等优点。
①电伴热的原理
电伴热带接通电源后(注意尾端线芯不得连接),电流由一根线芯经过导电的PTC材料到另一线芯而形成回路。电能使导电材料升温,其电阻随之增加,当芯带温度升至某值之后,电阻大到几乎阻断电流的程度,其温度不再升高,与此同时电伴热带向温度较低的被加热体系传热。电伴热带的功率主要受控于传热过程,随被加热体系的温度自动调节输出功率。
②电伴热的组成及安装
A、组成一个项目的电伴热主要由以下四部分组成:
a、自控温保温箱(对变送器进行保温);
b、电伴热电缆:自限温伴热电缆(低温型)、自限温伴热电缆(中温型)、MI恒功率伴热电缆;
c、伴热电源箱(对各个自控温保温箱及电伴热电缆进行供电);
d、安装辅材(电源接线盒、终端冒、玻璃丝带、铝箔胶带、石棉纤维绳等)。
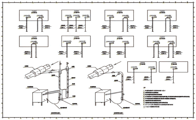
B、安装图1为压力变送器及差压变送器的电伴热带安装示意图。

图1 压力变送器及差压变送器的电伴热带安装示意图
电伴热安装要求:采用铝箔胶带粘贴固定发热电缆,使发热电缆与管道紧密接触,保证充分、快速传热。同一根发热电缆不能缠绕不同性质及材质的管道。将2根发热电缆沿管道直线放置,水平方向管道放置在管道下方两侧呈120°夹角,垂直方向管道放置在管道对称的两侧,并用铝箔胶带每隔3-50cm固定1道。如管道下方无法放置发热电缆,应将电缆放置在管道的两侧或上端但要适当增加缠绕系数。在放置发热电缆前测量每根电伴热线的电阻值,放置完成后再次测量其电阻值,确保无误后,用铝箔胶带将发热电缆和管道裹住、包严(搭接1cm),以确保电缆和管道表面保持紧密接触。放置发热电缆时不能有死结、死弯现象,穿洞、穿管时不能损伤电伴热线的外皮。发热电缆不能放置在管道较锋利的边缘,严禁踩踏发热电缆,并加以保护。发热电缆敷设的最小弯曲半径为线径的6倍,且不能出现交叉接触和重叠现象,两根线的最小间距为6cm。局部缠绕发热电缆不能过多,以免使管道过热烧毁发热电缆,如必须多缠绕时,应适当减少保温厚度。发热电缆承受的张力应≥25kg,系统应具有接地保护功能;发热电缆严禁与油漆、沥青及其他强酸、强碱等有机污染物接触;在安装前,应检查管道是否损坏或滴漏,另外发热电缆在管道上的连接固定必须以不破坏缆线为前提,在现场环境温度<-5℃时,发热电缆不宜安装。在发热电缆安装完毕后,必须核查发热电缆的标称电阻和绝缘电阻,然后包裹保温材料,最后连接电源。
2、新疆某余热发电项目中电伴热的实际应用
①工程概述新疆某水泥有限责任公司水泥熟料生产线余热发电项目地处较寒冷地带,仪表导压管道以及机务取样排污加药管道需要做电伴热,使其在室外气温较低的情况下不受冻(冬季室外温度-37℃)。
②技术要求
a、电伴热电控箱规格:前开门,户外式。
b、仪表保温箱规格:仪表保温箱所使用的电伴热元件是连续自动调节功率型,隐藏于夹层中,箱体内层四壁能均匀向箱内辐射传热,箱内温度自动调节,能确保箱内仪表正常工作。
c、箱内设有安装变送器的支架;应留有导压管的穿入孔,下方留有220VAC电源进线和4-20mA信号的进出线孔。
d、伴热电缆要求:仪表导压管伴热电缆应按自限温伴热带考虑,伴热电缆应能够使导压管的温度维持在5℃以上的要求。本项目中只有机务取样排污加药管道根据介质温度选择恒功率伴热电缆,机务给水管道根据介质温度选择自限温伴热电缆(中温型),伴热电缆应能够使机务管道的温度维持在5℃以上。
③电伴热的设计要求
该项目电伴热的设计见图2和图3。

图2 电伴热电控箱供电图
图2是电伴热电控箱给各个仪表保温箱及机务管道的电伴热电源盒进行供电的设计图。设计的重点在于使用Pt100热电阻为测温元件,高性能经济型显示控制仪YR-GFC403-01-08-HN-N-T作为控温核心设备,除了应该给每个需要伴热的设备及管道供热外,每个电伴热回路需使用带漏电保护的断路器,还应该考虑三相回路的平衡问题。由于在室外安装选择的防护等级为IP55,仪表部分的电伴热回路功率计算公式为:P(总功率)=P(自控温保温箱功率)+伴热电缆每米功率×伴热电缆长度。

图3 保温箱及电伴热带安装示意图
图3为保温箱及电伴热带安装示意图。从图中可以看出,变送器根据取源点位置的远近,就近合理分配自控温保温箱,这样可以尽可能地缩短需要伴热的管道,并没有采用一对一的自控温保温箱,是考虑到一对一安装既浪费现场空间而且费用更高。图中左下角为差压变送器及压力变送器的安装示意图。此图中并没有体现机务管道的电伴热,应根据管道里面介质的温度来选择是使用自限温伴热电缆还是MI恒功率伴热电缆。伴热电缆选型:一般来说在介质温度<65℃的时候,选择自限温伴热电缆(低温型);在介质温度低于120℃高于65℃的时候,选择自限温伴热电缆(中温型);在介质温度低于190℃高于120℃的时候,选择自限温伴热电缆(高温型);在介质温度<200℃使用MI恒功率伴热电缆。此温度选择适用于机务管道,同样也适用于仪表导压管(注:MI恒功率伴热电缆不能悬空敷设)。
④应用总结
首先,统计需要电伴热的仪表及仪表导压管的长度,统计需要电伴热的机务管道数量及长度;其次,根据介质的温度选择使用哪种伴热电缆;最后,根据现场取源点合理安排自控温保温箱。
⑤其他项目设计中可能会出现的问题
此项目中的机务管道由于管径都比较细,所以选择的电伴热电缆均为15W/m,但是并不代表其他项目中的机务管道电伴热电缆均为15W/m。具体每米电伴热电缆的功率应根据机务管道的管径来决定。
为了机组安全可靠的运行,在寒冷地区对仪表导压管及部分机务管道进行电伴热都是必要的。了解工程电伴热的组成,在施工安装中要严格按照安装要求进行安装,以保证电伴热的正常工作。在实际工程应用中,要根据不同的温度选择电伴热电缆,并根据距离的远近来选择哪些变送器需要集中安放。
